Cape Cod Deck Logo

Deck Cost Estimator

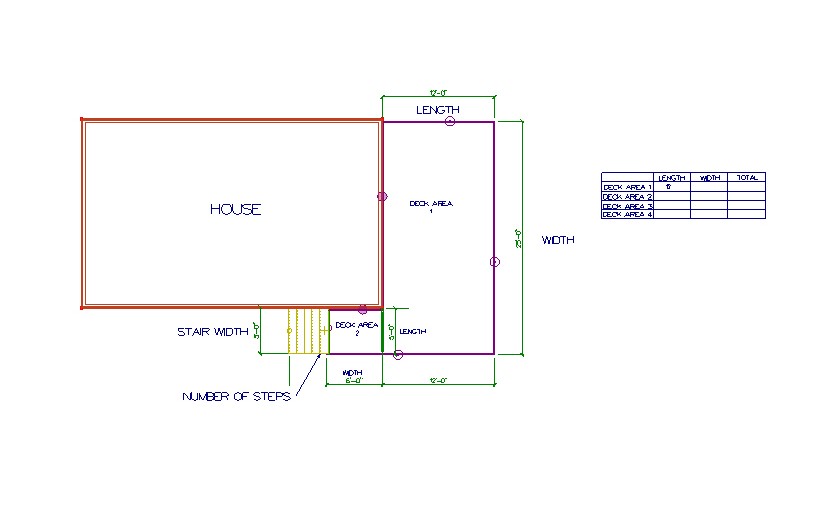
Get a quick estimate for your Cape Cod deck project using the diagram below

How to use this estimator: Use the measurement diagram below to determine your deck dimensions. Measure each section separately and enter the dimensions for an accurate estimate. This provides a rough budget estimate — contact us for a detailed quote.

How to Measure Your Deck - Measurement Diagram
Optional Add-Ons
Total Estimate: $0